ins风-九龙仓碧玺-三室两厅-128平-装修效果实景图

半包/全包/现代简约/三室两厅

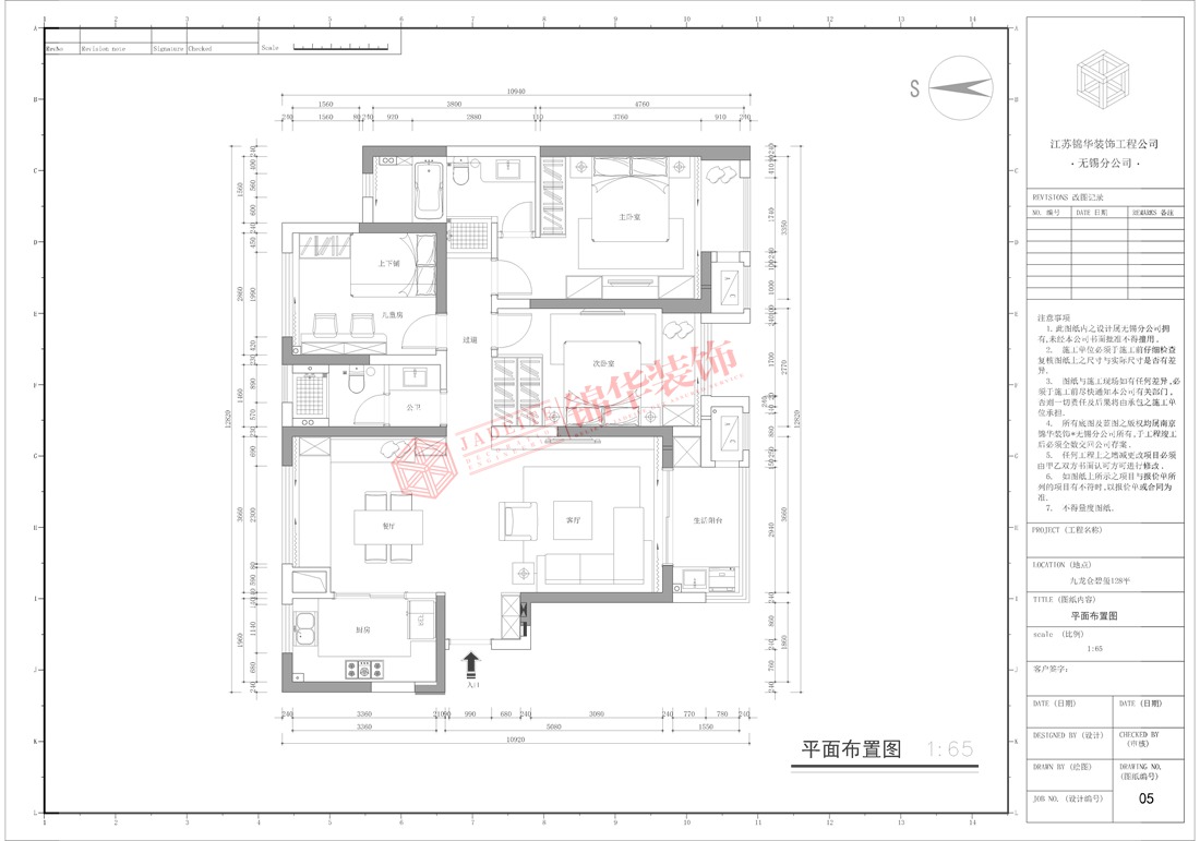
原户型方正,通风良好,客餐厅整体开阔明亮。

改造思路

我们在设计整体格局上没有太大的调整,主要是根据客户需求进行调整和功能优化。

为了提高空间利用率,我们在餐厅部分加入一个定制收纳矮柜,除了用于杂物玩具收纳,更重要的是满足男主人和两个宝宝学习和放松的地方。上柜黑丝与电视背景黑色形成统一背景,一进门便能被吸引到。

Ins风以木质结构布衣沙发为主,搭配大大小小绿植点缀,白墙上加上对称相框装饰,用做简单的方法搭配出自然,干净的状态


ins风-九龙仓碧玺-三室两厅-128平-装修效果实景图装修-三室两厅-现代简约

ins风-九龙仓碧玺-三室两厅-128平-装修效果实景图装修-三室两厅-现代简约

ins风-九龙仓碧玺-三室两厅-128平-装修效果实景图装修-三室两厅-现代简约

ins风-九龙仓碧玺-三室两厅-128平-装修效果实景图装修-三室两厅-现代简约

ins风-九龙仓碧玺-三室两厅-128平-装修效果实景图装修-三室两厅-现代简约

ins风-九龙仓碧玺-三室两厅-128平-装修效果实景图装修-三室两厅-现代简约

ins风-九龙仓碧玺-三室两厅-128平-装修效果实景图装修-三室两厅-现代简约

ins风-九龙仓碧玺-三室两厅-128平-装修效果实景图装修-三室两厅-现代简约

ins风-九龙仓碧玺-三室两厅-128平-装修效果实景图装修-三室两厅-现代简约

ins风-九龙仓碧玺-三室两厅-128平-装修效果实景图装修-三室两厅-现代简约

ins风-九龙仓碧玺-三室两厅-128平-装修效果实景图装修-三室两厅-现代简约

ins风-九龙仓碧玺-三室两厅-128平-装修效果实景图装修-三室两厅-现代简约

2条评论

评论

最新活动

春日美学 与家共生
活动时间:2026 活动地点:锦华装饰家居生活体验馆
  • 客厅总价: 0
  • 卧室总价:0
  • 厨房总价:0
  • 卫生间总价:0
  • 阳台总价:0
  • 其他预算:0
  • 管理费:0
  • 税金:0
整装装修报价: 0元起

该报价仅适用于毛坯房,稍后客户经理联系您,如有任何问题可以咨询客服。

15250817358
咨询电话 在线客服

网友评论,不代表锦华装修观点

评论