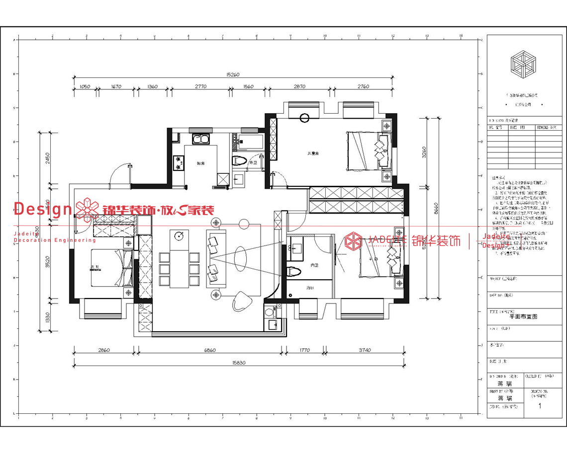
现代简约-氿悦湖山-三室两厅两卫-140平-装修实景图

全包/现代简约/三室两厅

这套房子业主是作为改善型住房来使用的,整体风格定位现代简约暖色调,业主一家三口,儿子房是把俩个房间打通让儿子的房间更舒服一点,功能与美观并存,让生活更加便捷实用,现代简约风格是以简约为主的装修风格。简约并

不是缺之设计要素,它是一种更高层次的创作境界。

在室内设计方面,不是要放弃原有建筑空问的规矩和

朴实,去对建筑载体进行任意装饰。而是在设计上更加强调功能,强调结构和形式的完整,更追求材料、技术、空间的表现深度与精确。

现代简约-氿悦湖山-三室两厅两卫-140平-装修实景图装修-三室两厅-现代简约

现代简约-氿悦湖山-三室两厅两卫-140平-装修实景图装修-三室两厅-现代简约

现代简约-氿悦湖山-三室两厅两卫-140平-装修实景图装修-三室两厅-现代简约

现代简约-氿悦湖山-三室两厅两卫-140平-装修实景图装修-三室两厅-现代简约

现代简约-氿悦湖山-三室两厅两卫-140平-装修实景图装修-三室两厅-现代简约

现代简约-氿悦湖山-三室两厅两卫-140平-装修实景图装修-三室两厅-现代简约

现代简约-氿悦湖山-三室两厅两卫-140平-装修实景图装修-三室两厅-现代简约

现代简约-氿悦湖山-三室两厅两卫-140平-装修实景图装修-三室两厅-现代简约

现代简约-氿悦湖山-三室两厅两卫-140平-装修实景图装修-三室两厅-现代简约

现代简约-氿悦湖山-三室两厅两卫-140平-装修实景图装修-三室两厅-现代简约

现代简约-氿悦湖山-三室两厅两卫-140平-装修实景图装修-三室两厅-现代简约

现代简约-氿悦湖山-三室两厅两卫-140平-装修实景图装修-三室两厅-现代简约

现代简约-氿悦湖山-三室两厅两卫-140平-装修实景图装修-三室两厅-现代简约

0条评论

评论

最新活动

新年新产品 轻松住好家
活动时间:2026 活动地点:锦华装饰家居生活体验馆
  • 客厅总价: 0
  • 卧室总价:0
  • 厨房总价:0
  • 卫生间总价:0
  • 阳台总价:0
  • 其他预算:0
  • 管理费:0
  • 税金:0
整装装修报价: 0元起

该报价仅适用于毛坯房,稍后客户经理联系您,如有任何问题可以咨询客服。

15250817358
咨询电话 在线客服

网友评论,不代表锦华装修观点

评论