奶油中古-中梁国宾府-四室两厅两卫-135平-装修实景图

全包/中古/四室两厅

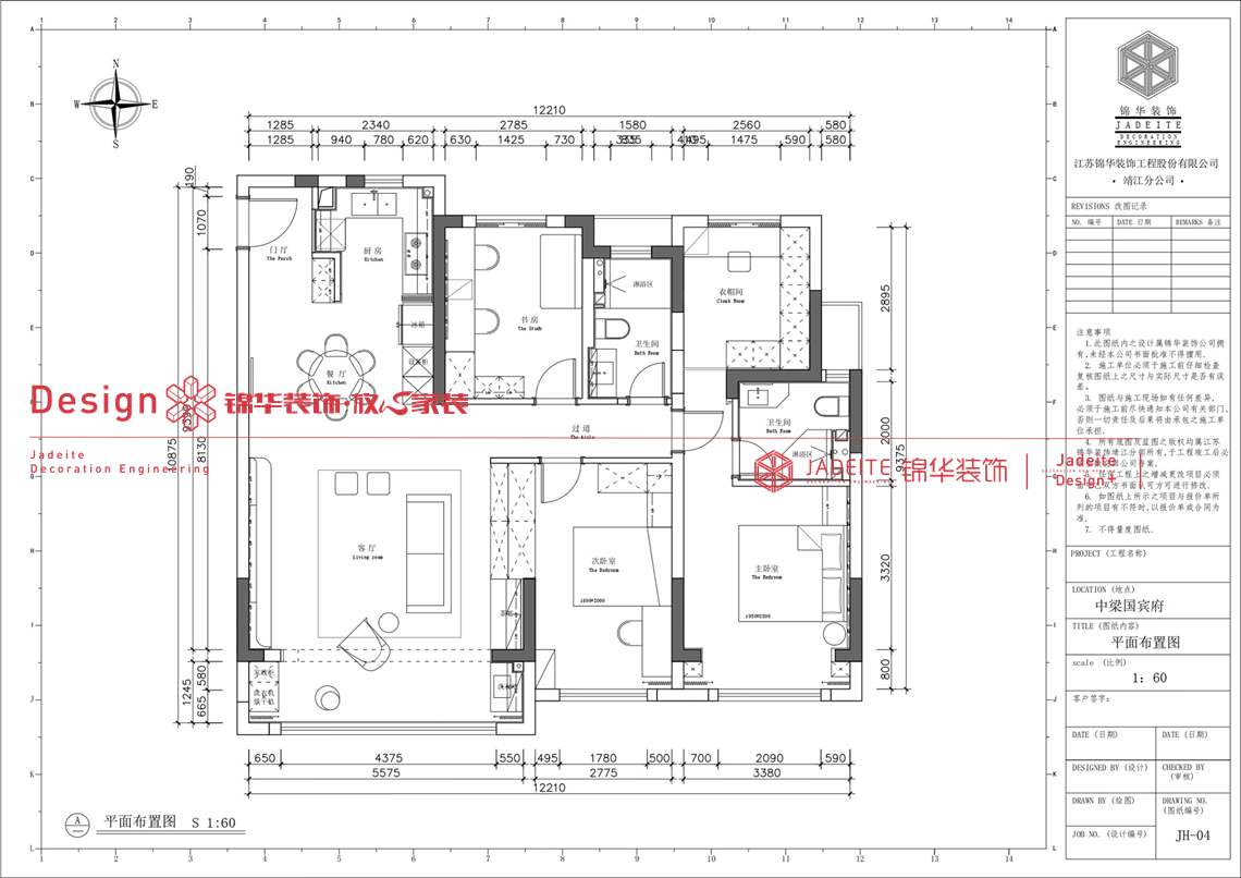
这是我们的一个老客户给儿子准备的婚房,后期就是小夫妻俩个住,所以四房保留了两个房间。

玄关痛点解决因原始户型进门无鞋柜区域,调整与厨房的墙体,“掏墙嵌入” 定制鞋柜,既利用了墙体厚度实现储物,又不占用过道空间,保持入户动线流畅。

客餐区通透升级打通阳台与客厅,弱化空间界限,最大化引入自然采光,搭配悬浮吊顶 + 线性灯,让中古风空间更显开阔明亮。

主卧套间改造打通主卧北侧小房间,整合为 “睡眠区 + 衣帽间” 的一体式套间,满足婚房的收纳需求,同时提升居住私密性与品质感。

在整个装修过程中,客户一直比较满意,在小区里面帮我们做宣传。


奶油中古-中梁国宾府-四室两厅两卫-135平-装修实景图装修-四室两厅-中古

奶油中古-中梁国宾府-四室两厅两卫-135平-装修实景图装修-四室两厅-中古

奶油中古-中梁国宾府-四室两厅两卫-135平-装修实景图装修-四室两厅-中古

奶油中古-中梁国宾府-四室两厅两卫-135平-装修实景图装修-四室两厅-中古

奶油中古-中梁国宾府-四室两厅两卫-135平-装修实景图装修-四室两厅-中古

奶油中古-中梁国宾府-四室两厅两卫-135平-装修实景图装修-四室两厅-中古

奶油中古-中梁国宾府-四室两厅两卫-135平-装修实景图装修-四室两厅-中古

奶油中古-中梁国宾府-四室两厅两卫-135平-装修实景图装修-四室两厅-中古

奶油中古-中梁国宾府-四室两厅两卫-135平-装修实景图装修-四室两厅-中古

奶油中古-中梁国宾府-四室两厅两卫-135平-装修实景图装修-四室两厅-中古

奶油中古-中梁国宾府-四室两厅两卫-135平-装修实景图装修-四室两厅-中古

奶油中古-中梁国宾府-四室两厅两卫-135平-装修实景图装修-四室两厅-中古

奶油中古-中梁国宾府-四室两厅两卫-135平-装修实景图装修-四室两厅-中古

0条评论

评论

最新活动

新年新产品 轻松住好家
活动时间:2026 活动地点:锦华装饰家居生活体验馆
  • 客厅总价: 0
  • 卧室总价:0
  • 厨房总价:0
  • 卫生间总价:0
  • 阳台总价:0
  • 其他预算:0
  • 管理费:0
  • 税金:0
整装装修报价: 0元起

该报价仅适用于毛坯房,稍后客户经理联系您,如有任何问题可以咨询客服。

15250817358
咨询电话 在线客服

网友评论,不代表锦华装修观点

评论