现代原木-氿珑云起-四室两厅两卫-153平-装修实景图

全包/现代简约/四室两厅

案以自然为本,简约至上,功能优先,遵循“少即是多”(Less is more)的原则,摒弃繁杂装饰,线条干净利落。一切设计以实用和提升生活效率为前提。

以原木色、米白、浅灰、奶油色等中性暖色调为基调,营造明亮、温馨、松弛的居家氛围。在自然质朴中,巧妙融入金属、玻璃、石材等现代材质作为点缀,实现自然感与现代感的平衡。

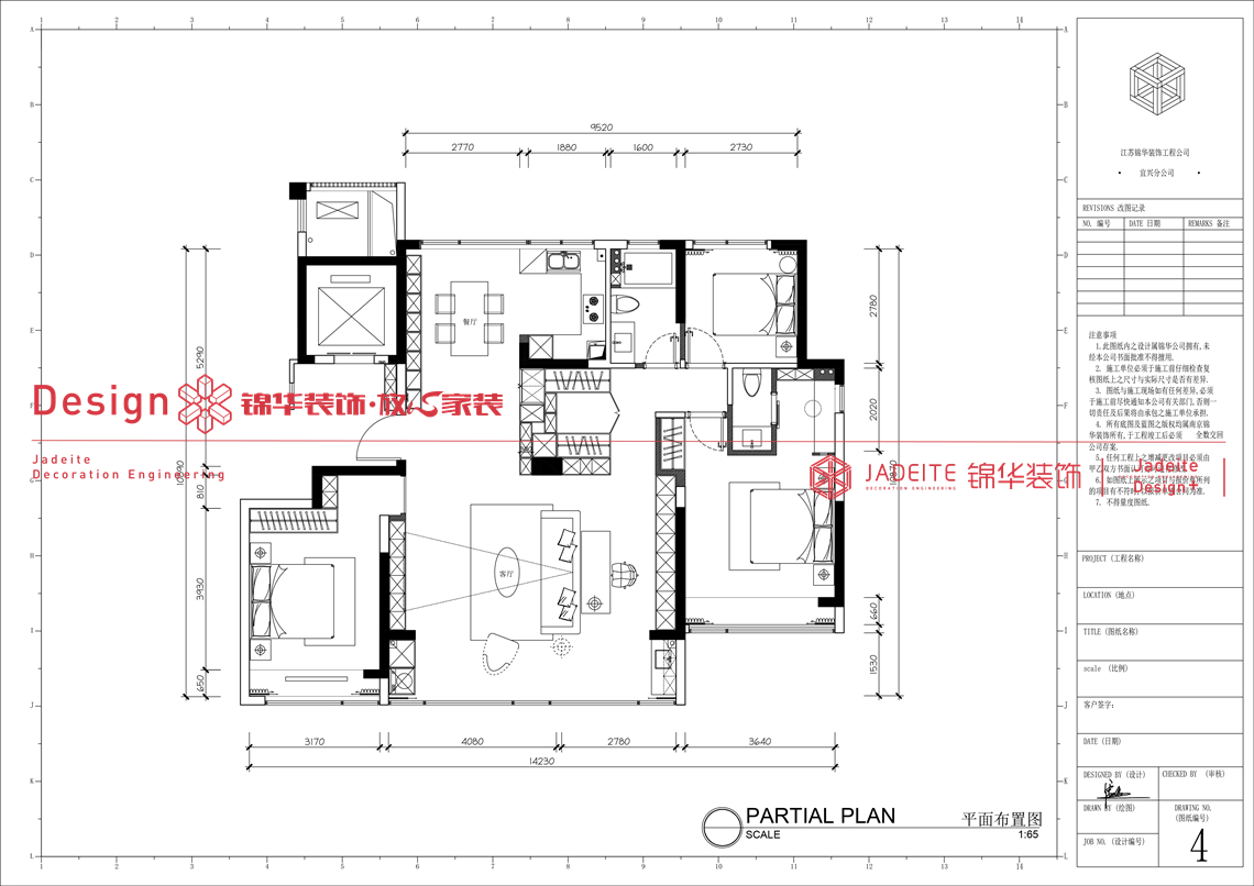
打通南向一间卧室,打造成宽阔的横厅,客厅与开放式书房一体,整体空间通透明亮,创造多种生活场景。

开放式厨房与餐厅一体,提升使用舒适便利性。

原始主卫位置增加梳妆台空间跟主卧相连,丰富主卧功能的同时,增加了主卧空间的通透性。

现代原木-氿珑云起-四室两厅两卫-153平-装修实景图装修-四室两厅-现代简约

现代原木-氿珑云起-四室两厅两卫-153平-装修实景图装修-四室两厅-现代简约

现代原木-氿珑云起-四室两厅两卫-153平-装修实景图装修-四室两厅-现代简约

现代原木-氿珑云起-四室两厅两卫-153平-装修实景图装修-四室两厅-现代简约

现代原木-氿珑云起-四室两厅两卫-153平-装修实景图装修-四室两厅-现代简约

现代原木-氿珑云起-四室两厅两卫-153平-装修实景图装修-四室两厅-现代简约

现代原木-氿珑云起-四室两厅两卫-153平-装修实景图装修-四室两厅-现代简约

现代原木-氿珑云起-四室两厅两卫-153平-装修实景图装修-四室两厅-现代简约

现代原木-氿珑云起-四室两厅两卫-153平-装修实景图装修-四室两厅-现代简约

现代原木-氿珑云起-四室两厅两卫-153平-装修实景图装修-四室两厅-现代简约

现代原木-氿珑云起-四室两厅两卫-153平-装修实景图装修-四室两厅-现代简约

现代原木-氿珑云起-四室两厅两卫-153平-装修实景图装修-四室两厅-现代简约

现代原木-氿珑云起-四室两厅两卫-153平-装修实景图装修-四室两厅-现代简约

现代原木-氿珑云起-四室两厅两卫-153平-装修实景图装修-四室两厅-现代简约

现代原木-氿珑云起-四室两厅两卫-153平-装修实景图装修-四室两厅-现代简约

现代原木-氿珑云起-四室两厅两卫-153平-装修实景图装修-四室两厅-现代简约

0条评论

评论

最新活动

新年新产品 轻松住好家
活动时间:2026 活动地点:锦华装饰家居生活体验馆
  • 客厅总价: 0
  • 卧室总价:0
  • 厨房总价:0
  • 卫生间总价:0
  • 阳台总价:0
  • 其他预算:0
  • 管理费:0
  • 税金:0
整装装修报价: 0元起

该报价仅适用于毛坯房,稍后客户经理联系您,如有任何问题可以咨询客服。

15250817358
咨询电话 在线客服

网友评论,不代表锦华装修观点

评论