黑白现代-华君湖湾-三室两厅两卫-108平-装修实景图

全包/现代简约/三室两厅

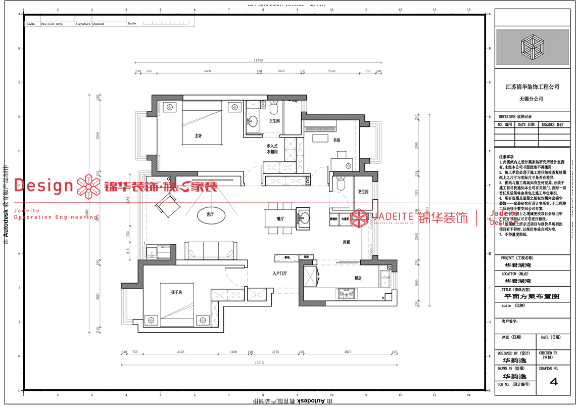
本设案例为黑白现代风格,针对原有客餐厅比例失衡的问题进行结构性改造。原餐厅开间仅2.1米,过于局促,现将该区域改为西厨,扩大外卫,实现干湿分离;同时将餐桌与客厅整合,利用客厅的空旷区域打造开放式餐厨一体化布局。改造后,动线流畅,空间通透,黑白对比与简洁线条强化了现代感。针对年轻夫妻与学龄儿童的家庭需求,融入圆角处理和灵活收纳,兼顾美学、安全与成长性,让极简之家既有序又温馨。

黑白现代-华君湖湾-三室两厅两卫-108平-装修实景图装修-三室两厅-现代简约

黑白现代-华君湖湾-三室两厅两卫-108平-装修实景图装修-三室两厅-现代简约

黑白现代-华君湖湾-三室两厅两卫-108平-装修实景图装修-三室两厅-现代简约

黑白现代-华君湖湾-三室两厅两卫-108平-装修实景图装修-三室两厅-现代简约

黑白现代-华君湖湾-三室两厅两卫-108平-装修实景图装修-三室两厅-现代简约

黑白现代-华君湖湾-三室两厅两卫-108平-装修实景图装修-三室两厅-现代简约

黑白现代-华君湖湾-三室两厅两卫-108平-装修实景图装修-三室两厅-现代简约

黑白现代-华君湖湾-三室两厅两卫-108平-装修实景图装修-三室两厅-现代简约

黑白现代-华君湖湾-三室两厅两卫-108平-装修实景图装修-三室两厅-现代简约

黑白现代-华君湖湾-三室两厅两卫-108平-装修实景图装修-三室两厅-现代简约

黑白现代-华君湖湾-三室两厅两卫-108平-装修实景图装修-三室两厅-现代简约

黑白现代-华君湖湾-三室两厅两卫-108平-装修实景图装修-三室两厅-现代简约

黑白现代-华君湖湾-三室两厅两卫-108平-装修实景图装修-三室两厅-现代简约

黑白现代-华君湖湾-三室两厅两卫-108平-装修实景图装修-三室两厅-现代简约

0条评论

评论

最新活动

春日美学 与家共生
活动时间:2026 活动地点:锦华装饰家居生活体验馆
  • 客厅总价: 0
  • 卧室总价:0
  • 厨房总价:0
  • 卫生间总价:0
  • 阳台总价:0
  • 其他预算:0
  • 管理费:0
  • 税金:0
整装装修报价: 0元起

该报价仅适用于毛坯房,稍后客户经理联系您,如有任何问题可以咨询客服。

15250817358
咨询电话 在线客服

网友评论,不代表锦华装修观点

评论